
提及別墅,朋友們會聯想到有錢、有面子、有身份、生活更上檔次,而今天名匠裝飾別墅裝修公司小編給大家奉上超乎各位想象的華貴別墅府邸,領略歐式風情下的高大上的生活。

佛山301平米以上別墅歐式風格裝修效果圖
別墅戶外庭院裝修案例,一株迎客松,笑迎四方來客,襯托出業主一家人的好客與友善,而小編一行人身處寬闊的院落中,就感受到了別墅豪宅的恢弘大氣,令人為之贊嘆。

佛山301平米以上別墅歐式風格裝修效果圖
別墅裝修案例,別墅外觀雕飾充滿了歐式高貴韻味,與別墅區其他別墅不同的是,陽臺吊頂采用了防水木材裝飾,溫馨舒適,也中和了別墅外表冰冷的感覺。

佛山301平米以上別墅歐式風格裝修效果圖
別墅陽臺裝修案例,后方是一處休閑區域,四周綠植鮮花環繞,充滿自然的味道。

佛山301平米以上別墅歐式風格裝修效果圖
別墅庭院裝修案例,而這一處家庭高爾夫球場應該是很多人夢想的設備,更是一種身份與地位的象征。

佛山301平米以上別墅歐式風格裝修效果圖
接下來,就跟隨別墅裝修公司,一起進來看看名匠裝飾設計師精湛技藝下的華貴府邸。

佛山301平米以上別墅歐式風格裝修效果圖

佛山301平米以上別墅歐式風格裝修效果圖
▲? 別墅首層布局圖
別墅客廳裝修案例,大理石裝飾的電視背景墻,搭配歐式壁爐,彰顯出別墅大宅的華美氣質;新風系統的出現,更是為生活帶來了更高的品質體驗。

佛山301平米以上別墅歐式風格裝修效果圖

佛山301平米以上別墅歐式風格裝修效果圖
別墅裝修案例,地面大理石地磚花紋圖案采用水刀切割雕飾,匠人精湛技藝展露的一覽無遺。

佛山301平米以上別墅歐式風格裝修效果圖

佛山301平米以上別墅歐式風格裝修效果圖
方與圓,異型天花讓客廳顯得頗為華麗,尊貴感油然而生。

佛山301平米以上別墅歐式風格裝修效果圖
天花細節展示,拼角及線條整齊順暢,造型十分的精致細膩。

佛山301平米以上別墅歐式風格裝修效果圖
別墅走廊裝修案例,穿過走廊區域,就是精心布局的茶室,而走廊的獨特地面圖案與客廳餐廳也都不一樣,形成了軟隔斷,明晰了整屋空間功能劃分。

佛山301平米以上別墅歐式風格裝修效果圖
歐式立柱裝飾,散發著大理石的尊貴光澤和金色的輝煌色澤,使得空間更為尊貴典雅。

佛山301平米以上別墅歐式風格裝修效果圖
暖黃色的窗簾帷幔,溫馨端莊。

佛山301平米以上別墅歐式風格裝修效果圖
別墅茶室裝修案例,來到茶室,襲來的是中式禪意,精致簡約的中式桌椅茶具,向周圍空間散發著清凈雅致。

佛山301平米以上別墅歐式風格裝修效果圖
別墅茶室裝修案例,而此處空間設計的精妙之處,便是后方壁畫的選擇,摒棄傳統山水畫的黑白色調,而融入了金色的色澤,不僅包含了中式的雅韻,也富含現代生活的精致質感,也更好的從客廳歐式風味過渡到中式氣息,不會給人突兀的視覺效果。

佛山301平米以上別墅歐式風格裝修效果圖
經典歐式的大理石雕刻,散發著濃郁的典雅美感。

佛山301平米以上別墅歐式風格裝修效果圖
別墅走廊裝修案例,離開茶室,我們向負一層參觀,別墅有四層,所以為了生活的便利,業主安裝了電梯,泛著金色光澤,是不是感覺非常上檔次。

佛山301平米以上別墅歐式風格裝修效果圖

佛山301平米以上別墅歐式風格裝修效果圖
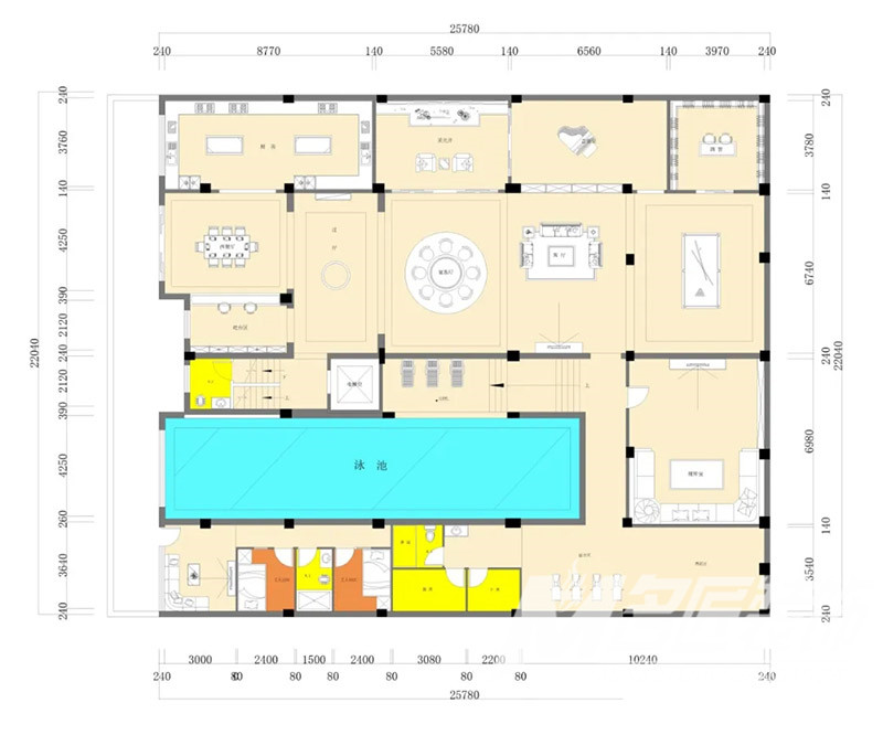
▲? 別墅負一層布局圖
來到負一層,首先便是富有現代生活情調的吧臺區域,而這里也被大理石層層環繞,彰顯貴氣華麗。

佛山301平米以上別墅歐式風格裝修效果圖
別墅簡餐區裝修案例,簡餐區家具選擇偏于現代簡約風格,棕色與大理石的灰色條紋,展現出精致沉穩的美感。

佛山301平米以上別墅歐式風格裝修效果圖

佛山301平米以上別墅歐式風格裝修效果圖
廚房是實木家具與大理石臺面搭配的天地,是高品質生活的一種體現。

佛山301平米以上別墅歐式風格裝修效果圖
別墅廚房裝修案例,櫥柜呈U型設計,水槽、操作臺、烹飪區處于舒適動線上,不僅要凸顯別墅的豪華氣質,更重要的是讓家人擁有更舒適的生活。

佛山301平米以上別墅歐式風格裝修效果圖

佛山301平米以上別墅歐式風格裝修效果圖
別墅廚房裝修案例,中島臺面上擺放著非常實用的物件,木制碗碟墊,吸油紙,這些都是對健康生活的一種追求。

佛山301平米以上別墅歐式風格裝修效果圖
據說這些烹飪器具不僅實用,而且具有很高的品味價值哦。

佛山301平米以上別墅歐式風格裝修效果圖
從簡餐區到圍餐區,有著走廊進行隔斷,走廊盡頭同樣有著歐式壁爐和柱體裝飾,上方擺放著鮮艷的盆景,俯臥的金屬鹿裝飾品,寓意著吉祥福祿,增福添財。

佛山301平米以上別墅歐式風格裝修效果圖
造型很精致哦。

佛山301平米以上別墅歐式風格裝修效果圖
拉長鏡頭看負一層空間,后方是廚房簡餐區,前方圍餐、會客等其他區域,是不是非常大氣,金碧輝煌。

佛山301平米以上別墅歐式風格裝修效果圖
潔白如玉的大理石餐桌臺面,是一種富貴的象征,背后的背景墻,更為這種富貴增添了華麗尊貴的意蘊。

佛山301平米以上別墅歐式風格裝修效果圖

佛山301平米以上別墅歐式風格裝修效果圖
別墅餐廳裝修案例,上方同樣擺放著金屬鹿裝飾和鮮花,為家人寄托美好的寓意。

佛山301平米以上別墅歐式風格裝修效果圖
會客室緊鄰會客區,餐前餐后休息室,可以在此處和親朋好友暢所欲言,十分方便。

佛山301平米以上別墅歐式風格裝修效果圖
別墅會客廳裝修案例,整屋地面大理石圖案、鋪貼不僅匠人技藝精湛高超,而且十分美觀,完美凸顯大宅府邸的高端品味。

佛山301平米以上別墅歐式風格裝修效果圖

佛山301平米以上別墅歐式風格裝修效果圖
別墅會客廳裝修案例,經典歐式造型皮藝沙發,舒適上檔次,暖色調的抱枕為空間增添了溫馨的感覺。

佛山301平米以上別墅歐式風格裝修效果圖
別墅會客廳裝修案例,沙發區域背景墻由大理石修飾的柜體與琴室進行了隔斷,不僅很好的劃分了空間,也為室內增添了儲物的能力。

佛山301平米以上別墅歐式風格裝修效果圖
從臺球室開始,便是業主一家會客或是自己娛樂休閑的場所了,多了與親朋好友聊天談話的契機。

佛山301平米以上別墅歐式風格裝修效果圖
這里是練琴室,可以培養孩子的優雅氣質,也為孩子鍛煉了更多的才藝技能。

佛山301平米以上別墅歐式風格裝修效果圖
小編一行人親身體驗了一番,無論音質還是隔音效果,我們的匠人們都處理的十分到位,天花以井字格造型設計,使原本單調的天花更富有趣味。

佛山301平米以上別墅歐式風格裝修效果圖
別墅影音室裝修案例,潔白的沙發座椅,柔軟舒適,與墻面的灰色調相互搭配,更具有時尚感。

佛山301平米以上別墅歐式風格裝修效果圖
正對泳池區域門口,背景墻圖案優雅精致,不僅彰顯著主人喜好與情趣,也更好的美化了空間。

佛山301平米以上別墅歐式風格裝修效果圖

佛山301平米以上別墅歐式風格裝修效果圖
在家里擁有一處可以游泳避暑的空間,應該是很多人的夢想吧,所以小編在開始就信誓旦旦的說,這棟別墅的設計滿足所有人對家的想象。

佛山301平米以上別墅歐式風格裝修效果圖
從泳池區域出來,便是健身區域,良好的新風系統,保障了家人鍛煉身體的舒適性。

佛山301平米以上別墅歐式風格裝修效果圖
與健身房相對的是桑拿房,在此處的走廊區域,設計師巧妙的設計一處天窗,保證了此處的采光效果,自然光線的融入,不會感受到空間的壓抑。

佛山301平米以上別墅歐式風格裝修效果圖
蒸蒸桑拿,排一排身體毒素,既舒適又健康。

佛山301平米以上別墅歐式風格裝修效果圖
柳州101-200平米歐式風格東方名都裝修設計案例
歐式風格101-200平米五居室
惠州101-200平米歐式風格利和豪庭室內設計效果圖
歐式風格101-200平米四居室
廣州301平米以上歐式風格世紀豪園室內設計效果圖
歐式風格301平米以上別墅
廣州101-200平米歐式風格寶峰春天室內設計效果圖
歐式風格101-200平米四居室
景德鎮101-200平米歐式風格嘉禾家裝設計效果圖
歐式風格101-200平米三居室
嘉興201-300平米歐式風格盛世香堡裝修設計效果圖
歐式風格201-300平米別墅
廣州101-200平米歐式風格家裝設計案例
歐式風格101-200平米三居室
佛山100平米以下歐式風格順景花園室內裝修設計案例
歐式風格100平米以下三居室