
在整體的設計上時尚簡約,力求打造明亮、質樸、純凈的生活空間,其家具搭配以咖啡色系為主,詮釋了出空間力求自然簡約的調性。
現代風格追求時尚和潮流,相當注重居室空間的布局和使用功能的結合。在空間的布局上,現代風格的空間組織不再是以房間的組合為主,更加注重會客、學習和睡眠等功能性,同時這種劃分又隨著不同的時間段表現出不同的靈活性、兼容性和流動性。
.jpg)
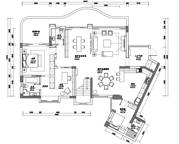
珠海海怡灣畔復式現代簡約風格裝修效果圖
.jpg)
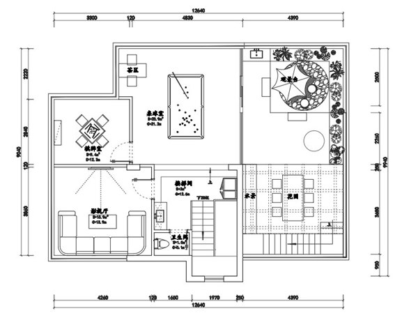
珠海海怡灣畔復式現代簡約風格裝修效果圖
.jpg)
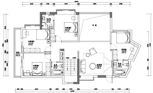
珠海海怡灣畔復式現代簡約風格裝修效果圖
.jpg)
珠海海怡灣畔復式現代簡約風格裝修效果圖
.jpg)
珠海海怡灣畔復式現代簡約風格裝修效果圖
.jpg)
珠海海怡灣畔復式現代簡約風格裝修效果圖
.jpg)
珠海海怡灣畔復式現代簡約風格裝修效果圖
.jpg)
珠海海怡灣畔復式現代簡約風格裝修效果圖
.jpg)
珠海海怡灣畔復式現代簡約風格裝修效果圖
.jpg)
珠海海怡灣畔復式現代簡約風格裝修效果圖
.jpg)
珠海海怡灣畔復式現代簡約風格裝修效果圖
.jpg)
珠海海怡灣畔復式現代簡約風格裝修效果圖
.jpg)
珠海海怡灣畔復式現代簡約風格裝修效果圖
.jpg)
珠海海怡灣畔復式現代簡約風格裝修效果圖
.jpg)
珠海海怡灣畔復式現代簡約風格裝修效果圖
.jpg)
珠海海怡灣畔復式現代簡約風格裝修效果圖
.jpg)
珠海海怡灣畔復式現代簡約風格裝修效果圖
.jpg)
珠海海怡灣畔復式現代簡約風格裝修效果圖

珠海海怡灣畔復式現代簡約風格裝修效果圖

珠海海怡灣畔復式現代簡約風格裝修效果圖
廣州101-200平米現代簡約風格三江雅苑家裝設計效果圖
現代簡約風格101-200平米三居室
江門101-200平米現代簡約風格海倫時光家裝設計案例
現代簡約風格101-200平米三居室
江門101-200平米現代簡約風格御濱名門家裝設計案例
現代簡約風格101-200平米三居室
廣州101-200平米現代簡約風格遠洋天祺裝修設計效果圖
現代簡約風格101-200平米四居室
廣州100平米以下現代簡約風格家裝設計案例
現代簡約風格100平米以下二居室
柳州101-200平米現代簡約風格富灣國際家裝設計效果圖
現代簡約風格101-200平米四居室
廣州101-200平米現代簡約風格遠洋新天地裝修設計效果圖
現代簡約風格101-200平米三居室
柳州101-200平米現代簡約風格君華新城家裝設計效果圖
現代簡約風格101-200平米三居室