
設計風格:美式輕奢
常住人口:6人
住宅面積:208m2
設計門店:銅仁名匠裝飾,別墅裝修公司
設計理念:好的設計是恒久的,即使過了許久時光,精雕細琢后的家依然保持著耐看的質感,舒適的功能。
本案以海港藍為主色調,和諧的色彩搭配能夠影響到家人生活的心情,是筑就美好生活最為敏感的形式要素;而在本案中,巧妙的將高級大氣的灰,與沉靜優雅的藍融合一體,創造出一幅令人傾心的都市新時尚。
別墅空間格局,無論大戶型還是小戶型,空間格局對于家人的生活也起到至關重要的作用,相比未合理規劃的擁擠空間,寬敞通透的空間更令人生活舒適,有條理,不負歲月靜好,享受美好的輕奢時光。

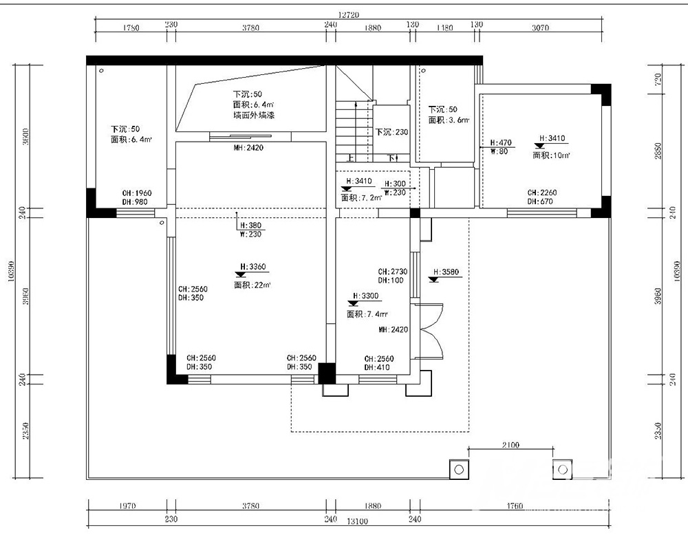
銅仁201-300平米別墅美式風格裝修效果圖
▲ ?首層平面圖

銅仁201-300平米別墅美式風格裝修效果圖
▲ ?首層布局圖
別墅玄關裝修設計,步入室內,光潔亮麗的大理石地磚,一起自帶的高質感光環,給人高品位的生活體驗;輕,是一種生活態度,簡潔布局,沒有繁雜的裝飾,令空間寬敞大氣,而奢是一種生活品味,高級灰色調的融入,搭配散發金色光澤的隔斷,不僅很好的分離了功能空間,更是一種高雅的生活品味。

銅仁201-300平米別墅美式風格裝修效果圖
別墅裝修設計-玄關
別墅客廳裝修設計,來到客廳,素雅的電視背景墻給人耳目一新的感覺,海港藍+灰白色調的搭配,令空間層次分明,給人一種高雅時尚的視覺效果,輔以生態板材定制的電視柜,天然的原木色為冷色調升溫,賦予空間更多溫馨的感受。

銅仁201-300平米別墅美式風格裝修效果圖
別墅裝修設計-客廳
別墅客廳裝修設計,而沙發區域,更顯生活的輕奢本質,海港藍配色的沙發,散發著優雅的質感,深淺不一的藍色世界,像是訴說著都市生活中的新風尚,怪不得越來越多的朋友們青睞于這種色系搭配;而金屬元素在整體色彩中的穿插運用,帶來充滿張力的空間魅力。

銅仁201-300平米別墅美式風格裝修效果圖
別墅裝修設計-客廳
別墅廚房裝修設計,廚房各功能區依次排放,白色與原木色的搭配,整體清爽而潔凈,搭配灰色的地磚及墻磚,為廚房空間諸如潮流時尚感;廚房門選擇搭配了極窄邊框推拉門,更充分的采光面積,令空間格局各位寬敞明晰,使人心情舒暢。

銅仁201-300平米別墅美式風格裝修效果圖
別墅裝修設計-廚房

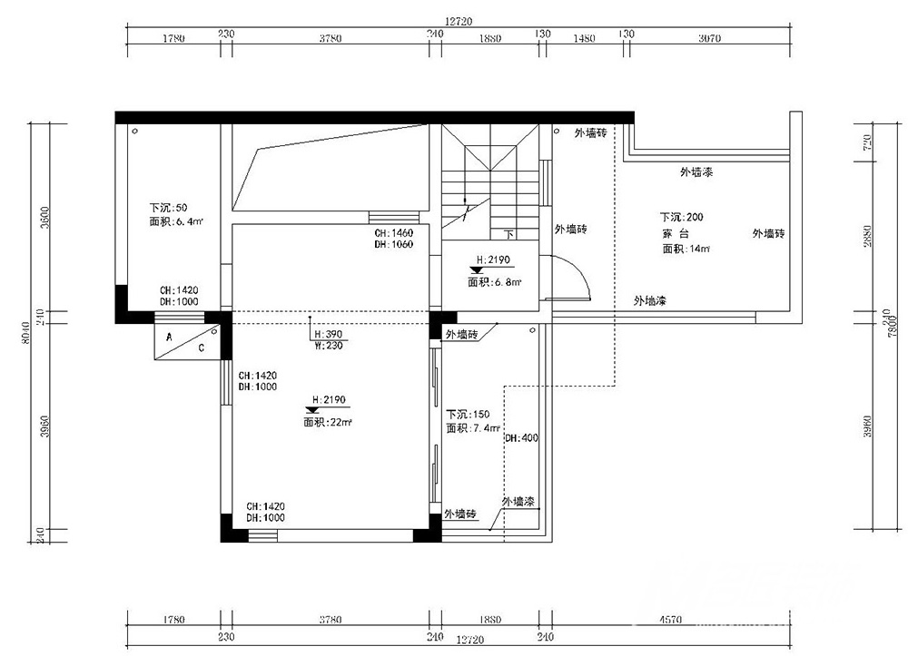
銅仁201-300平米別墅美式風格裝修效果圖
▲ ?二層平面圖

銅仁201-300平米別墅美式風格裝修效果圖
▲ ?二層布局圖
別墅兒童房裝修設計,基于對業主孩子的了解,結合孩子的喜好及性格,專屬定制富有童趣的兒童房,以海港藍為基礎色,可以營造出令孩子更具有想象力的氛圍,培養孩子更好的性格和生活方式。

銅仁201-300平米別墅美式風格裝修效果圖
別墅裝修設計-兒童房
別墅次臥裝修設計,另一間孩子的房間,同樣充滿了喜歡的元素,一幅侏羅紀公園作為背景墻,使孩子喜好的展現,而白色與原木色的搭配,降低了畫面的華麗感,使得空間低調不張揚,更顯穩重大方,對于孩子的性格塑造也起到了積極作用。

銅仁201-300平米別墅美式風格裝修效果圖
別墅裝修設計-兒童房

銅仁201-300平米別墅美式風格裝修效果圖
▲ ?頂層平面圖

銅仁201-300平米別墅美式風格裝修效果圖
▲ ?頂層布局圖
別墅主臥裝修設計,看似簡單的主臥,卻透露著設計師的巧妙心思,淺淡的灰色墻面設計,時尚精致,帶來了更高貴的精品生活方式,在臥室相關的軟裝搭配方面,素雅的地毯與原木色的配合,散發著溫馨舒適的情調;以自然簡約的家居物品陳設,使得空間更為寬敞,家人在居室中走動也更舒適、方便,心情自然舒暢很多。

銅仁201-300平米別墅美式風格裝修效果圖
別墅裝修設計-主臥
紅河哈尼族彝族自治州101-200平米美式風格俊峰花園裝修設計案例
美式風格101-200平米三居室
臺州101-200平米美式風格美景和府裝修設計效果圖
美式風格101-200平米四居室
文山壯族苗族自治州101-200平米美式風格中天名郡家裝設計效果圖
美式風格101-200平米三居室
嘉興101-200平米美式風格東林苑家裝設計案例
美式風格101-200平米四居室
紅河哈尼族彝族自治州101-200平米美式風格驪都國際室內設計效果圖
美式風格101-200平米三居室
廣州101-200平米美式風格室內設計效果圖
美式風格101-200平米復式
廣州101-200平米美式風格裝修設計案例
美式風格101-200平米三居室
衢州301平米以上美式風格室內裝修設計案例
美式風格301平米以上別墅